 
Connie Kraska Boulder Real Estate Agent - 720.309.2862
SOLD! MLS: 4221310 $550,000
4 Bedrooms with 4 Baths694 SADDLE DR ERIE CO 80516
ERIE CO 80516MLS: 4221310
Status: SOLD
Closed On: 2025-08-15
Sold Price: $550,000
Sold Price per SqFt: $298
Square Footage: 18444 Bedrooms
4 Baths
Year Built: 2024
Zip Code: 80516
Listing Remarks
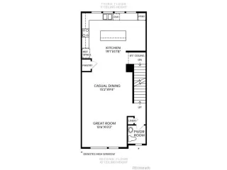
$20k closing costs with preferred lender - Contact sales for more details | 720.861.0600 A welcoming 1st level foyer flows past a convenient bedroom with a private bath up to a spacious second floor with elegant 10' ceilings. The light-filled great room features large windows and direct access to the balcony with views to the community green space. The spacious kitchen features plentiful counter and cabinet space and a large center island with breakfast bar. Stylish open rail keeps the 2nd Level open and airy. Upstairs at the 3rd floor, the primary bedroom is an elegant retreat with a generous walk-in closet and a charming bath with a dual-sink vanity, shower with seat, and a private water closet. Two additional secondary bedrooms have a shared bath with a two sink vanity. Other desirable features include a convenient powder room on the 2nd floor, an entry off the garage, bedroom-level laundry, and extra storage throughout. Make this townhome yours soon and enjoy the opportunity to select interior colors and finishes with our professional designers at the Toll Brothers Design Studio. *Additional costs apply for design upgrades. Don't miss this opportunity to enjoy low-maintenance living at Erie's newest luxury new home community, Erie Town Center. Schedule an appointment today!
Address: 694 SADDLE DR ERIE CO 80516 ERIE CO 80516
Listing Courtesy of Coldwell Banker Realty 56 303-235-0400
Condo Mania Agent
Connie Kraska
LIV Sotheby's International Realty
Broker Associate
Phone: 720.309.2862
Request More Information
Listing Details
STATUS: Closed SPECIAL LISTING CONDITIONS: Builder LISTING CONTRACT DATE: 2025-04-03 CLOSE DATE: 2025-08-15 BEDROOMS: 4 BATHROOMS FULL: 3 BATHROOMS THREE QUARTER: 0 BATHROOMS HALF: 0 LIVING AREA SQ FT: 1844 BUILDING AREA TOTAL: 1844 YEAR BUILT: 2024 TAXES: $5,559 HOA FEES FREQUENCY: Monthly HOA FEES: $177 HOA INCLUDES: Trash, Snow Removal APPLIANCES INCLUDED: Dishwasher, Microwave, Disposal ARCHITECTURAL STYLE: Contemporary/Modern CONSTRUCTION: Wood/Frame, Composition Siding COMMUNITY FEATURES: Playground, Park EXTERIOR FEATURES: Balcony HEATING: Forced Air COOLING: Central Air INTERIOR FEATURES: Open Floorplan, Pantry, Walk-In Closet(s), Kitchen Island LAUNDRY FEATURES: Upper Level LOT FEATURES: Gutters, Abuts Private Open Space # GARAGE SPACES: 2 PROPERTY TYPE: Attached Dwelling PROPERTY SUB TYPE: Attached Dwelling ROOF: Fiberglass DIRECTION FACES: West LISTING AGENT: AMY BALLAIN LISTING OFFICE: COLDWELL BANKER REALTY 56 
Property Location: 694 SADDLE DR ERIE CO 80516 ERIE CO 80516
This Listing
Active Listings Nearby
You Might Also Be Interested In...
The Fair Housing Act prohibits discrimination in housing based on color, race, religion, national origin, sex, familial status, or disability.
Information source: Information and Real Estate Services, LLC. Provided for limited non-commercial use only under IRES Rules. © Copyright IRES.
Information Deemed Reliable But Not Guaranteed. The information being provided is for consumer's personal, non-commercial use and may not be used for any purpose other than to identify prospective properties consumers may be interested in purchasing. This information, including square footage, while not guaranteed, has been acquired from sources believed to be reliable.
Last Updated: 2025-10-30 19:08:28
 Boulder Condo Mania
Boulder Condo Mania







