Connie Kraska Boulder Real Estate Agent - 720.309.2862
SOLD! MLS: 8912303 $394,950
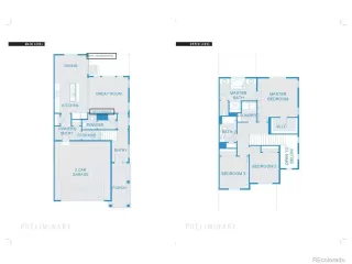
3 Bedrooms with 3 Baths6857 ENTERPRISE DR FORT COLLINS CO 80526
FORT COLLINS CO 80526MLS: 8912303
Status: SOLD
Closed On: 2021-01-15
Sold Price: $394,950
Sold Price per SqFt: $229
Square Footage: 17273 Bedrooms
3 Baths
Year Built: 2020
Zip Code: 80526
Listing Remarks
A paired home that lives like a single family? You've found it! This stunning Marissa floorplan boasts over 1,700 square feet of open concept living. Featuring a covered back patio and a back patio that looks onto a beautiful park space, modern design elements like white cabinets, granite countertops, convenient upstairs laundry room, and a massive 5-piece master bathroom! Located just minutes from shopping, dining, and entertainment, yet perfectly situated at the base of Horsetooth Reservoir, with endless trails to enjoy the outdoors! Estimated completion December 2020. Come tour this home today!
Address: 6857 ENTERPRISE DR FORT COLLINS CO 80526 FORT COLLINS CO 80526
Listing Courtesy of Landmark Residential Brokerage 720-248-7653
Condo Mania Agent
Connie Kraska
LIV Sotheby's International Realty
Broker Associate
Phone: 720.309.2862
Request More Information
Listing Details
STATUS: Closed SPECIAL LISTING CONDITIONS: Builder LISTING CONTRACT DATE: 2020-08-31 CLOSE DATE: 2021-01-15 BEDROOMS: 3 BATHROOMS FULL: 2 BATHROOMS THREE QUARTER: 0 BATHROOMS HALF: 1 LIVING AREA SQ FT: 1727 BUILDING AREA TOTAL: 1727 YEAR BUILT: 2020 TAXES: $3,491 HOA FEES FREQUENCY: Monthly HOA FEES: $95 HOA INCLUDES: Trash APPLIANCES INCLUDED: Dishwasher, Microwave, Disposal CONSTRUCTION: Wood/Frame, Composition Siding FIREPLACE: Great Room, Single Fireplace HEATING: Forced Air COOLING: Central Air INTERIOR FEATURES: Open Floorplan, Pantry, Walk-In Closet(s), Kitchen Island LAUNDRY FEATURES: Upper Level LOT FEATURES: Gutters # GARAGE SPACES: 2 PROPERTY TYPE: Attached Dwelling PROPERTY SUB TYPE: Attached Dwelling ROOF: Composition DIRECTION FACES: East LISTING AGENT: TEAM KAMINSKY LISTING OFFICE: LANDMARK RESIDENTIAL BROKERAGE
Property Location: 6857 ENTERPRISE DR FORT COLLINS CO 80526 FORT COLLINS CO 80526
This Listing
Active Listings Nearby
You Might Also Be Interested In...
The Fair Housing Act prohibits discrimination in housing based on color, race, religion, national origin, sex, familial status, or disability.
Information source: Information and Real Estate Services, LLC. Provided for limited non-commercial use only under IRES Rules. © Copyright IRES.
Information Deemed Reliable But Not Guaranteed. The information being provided is for consumer's personal, non-commercial use and may not be used for any purpose other than to identify prospective properties consumers may be interested in purchasing. This information, including square footage, while not guaranteed, has been acquired from sources believed to be reliable.
Last Updated: 2026-01-09 05:09:22
Boulder Condo Mania

