Connie Kraska Boulder Real Estate Agent - 720.309.2862
SOLD! MLS: 933820 $275,000
2 Bedrooms with 2 Baths1901 ROSS CT D10-D10 FORT COLLINS CO 80526
FORT COLLINS CO 80526MLS: 933820
Status: SOLD
Closed On: 2021-04-01
Sold Price: $275,000
Sold Price per SqFt: $292
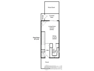
Square Footage: 9422 Bedrooms
2 Baths
Year Built: 1978
Zip Code: 80526
Listing Remarks
Sunny south end unit remodeled & updated townhome style condo in quiet corner of complex backing to single family homes. Pre-inspected for buyer peace of mind! New since 2016: Kitchen w/ quartz, upstairs bath w/ quartz, roof, wood & bamboo flooring, appliances, radon mitigation system, extensive landscaping. Great fenced yard with big deck. Newer windows for energy efficiency. Close to hiking & biking trails on the west side of town & Horsetooth Reservoir. Great parking with 2 assigned spots. Clothes washer in unit will be replaced with front load unit Seller has in storage to match dryer. Storage closet on back patio. Well maintained building. *Edit per Seller instructions* Offers received. Showings Thursday, 25 February through Saturday 27 Feb at 5pm. Offers due 6pm Saturday, 27 February.
Address: 1901 ROSS CT D10-D10 FORT COLLINS CO 80526 FORT COLLINS CO 80526
Listing Courtesy of Keller Williams Realty NoCo 970-449-7100
Condo Mania Agent
Connie Kraska
LIV Sotheby's International Realty
Broker Associate
Phone: 720.309.2862
Request More Information
Listing Details
STATUS: Closed SPECIAL LISTING CONDITIONS: Private Owner LISTING CONTRACT DATE: 2021-02-19 CLOSE DATE: 2021-04-01 BEDROOMS: 2 BATHROOMS FULL: 1 BATHROOMS THREE QUARTER: 0 BATHROOMS HALF: 1 LIVING AREA SQ FT: 942 BUILDING AREA TOTAL: 942 YEAR BUILT: 1978 TAXES: $1,489 HOA FEES FREQUENCY: Monthly HOA FEES: $210 HOA INCLUDES: Common Amenities, Trash, Snow Removal, Management, Utilities, Maintenance Structure APPLIANCES INCLUDED: Electric Range/Oven, Dishwasher, Refrigerator, Washer, Dryer ARCHITECTURAL STYLE: Contemporary/Modern CONSTRUCTION: Wood/Frame COMMUNITY FEATURES: Park EXTERIOR FEATURES: Private Yard, Lighting FIREPLACE: Living Room HEATING: Baseboard COOLING: Wall/Window Unit(s), Ceiling Fan(s) INTERIOR FEATURES: Open Floorplan LAUNDRY FEATURES: Upper Level LOT FEATURES: Curbs, Gutters, Sidewalks, Fire Hydrant within 500 Feet, Cul-De-Sac # GARAGE SPACES: 0 PROPERTY TYPE: Attached Dwelling PROPERTY SUB TYPE: Attached Dwelling ROOF: Composition DIRECTION FACES: West LISTING AGENT: MICHAEL WEBER LISTING OFFICE: KELLER WILLIAMS REALTY NOCO
Property Location: 1901 ROSS CT D10-D10 FORT COLLINS CO 80526 FORT COLLINS CO 80526
This Listing
Active Listings Nearby
You Might Also Be Interested In...
The Fair Housing Act prohibits discrimination in housing based on color, race, religion, national origin, sex, familial status, or disability.
Information source: Information and Real Estate Services, LLC. Provided for limited non-commercial use only under IRES Rules. © Copyright IRES.
Information Deemed Reliable But Not Guaranteed. The information being provided is for consumer's personal, non-commercial use and may not be used for any purpose other than to identify prospective properties consumers may be interested in purchasing. This information, including square footage, while not guaranteed, has been acquired from sources believed to be reliable.
Last Updated: 2025-12-18 19:08:18
Boulder Condo Mania






