Connie Kraska Boulder Real Estate Agent - 720.309.2862
SOLD! MLS: 962413 $683,000
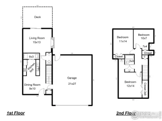
3 Bedrooms with 2 Baths1080 FAIRWAY CT 1 BOULDER CO 80303
BOULDER CO 80303MLS: 962413
Status: SOLD
Closed On: 2022-05-11
Sold Price: $683,000
Sold Price per SqFt: $487
Square Footage: 14023 Bedrooms
2 Baths
Year Built: 1977
Zip Code: 80303
Listing Remarks
This charming, sunny, end-unit condo lives like a townhome. Cozy fireplace, new carpet, and upgrades throughout. This comfortable floor plan is highlighted by a fabulous deck off of the main living space. Enjoy summer nights with friends under the stars. Nearly everything was updated in 2016 and with minimal wear, it feels like a fresh remodel. Too many features to list. Close to Meadow Glen Swim and Tennis Club and easy access to South Boulder Creek Trail and open space.
Address: 1080 FAIRWAY CT 1 BOULDER CO 80303 BOULDER CO 80303
Listing Courtesy of Porchlight Real Estate Group 303-733-5335
Condo Mania Agent
Connie Kraska
LIV Sotheby's International Realty
Broker Associate
Phone: 720.309.2862
Request More Information
Listing Details
STATUS: Closed SPECIAL LISTING CONDITIONS: Private Owner LISTING CONTRACT DATE: 2022-04-07 CLOSE DATE: 2022-05-11 BEDROOMS: 3 BATHROOMS FULL: 1 BATHROOMS THREE QUARTER: 0 BATHROOMS HALF: 1 LIVING AREA SQ FT: 1402 BUILDING AREA TOTAL: 1402 YEAR BUILT: 1977 TAXES: $3,411 HOA FEES FREQUENCY: Monthly HOA FEES: $345 HOA INCLUDES: Maintenance Grounds APPLIANCES INCLUDED: Electric Range/Oven, Dishwasher, Refrigerator, Washer, Dryer, Microwave, Disposal CONSTRUCTION: Wood/Frame, Brick/Brick Veneer COMMUNITY FEATURES: None EXTERIOR FEATURES: Lighting FIREPLACE: Living Room HEATING: Forced Air COOLING: Central Air LOT FEATURES: Curbs, Gutters, Sidewalks, Cul-De-Sac # GARAGE SPACES: 2 PARKING FEATURES: Garage Door Opener, Oversized PROPERTY TYPE: Attached Dwelling PROPERTY SUB TYPE: Attached Dwelling ROOF: Composition VIEW: Foothills View LISTING AGENT: JULIE HAUSER LISTING OFFICE: PORCHLIGHT REAL ESTATE GROUP
Property Location: 1080 FAIRWAY CT 1 BOULDER CO 80303 BOULDER CO 80303
This Listing
Active Listings Nearby
You Might Also Be Interested In...
The Fair Housing Act prohibits discrimination in housing based on color, race, religion, national origin, sex, familial status, or disability.
Information source: Information and Real Estate Services, LLC. Provided for limited non-commercial use only under IRES Rules. © Copyright IRES.
Information Deemed Reliable But Not Guaranteed. The information being provided is for consumer's personal, non-commercial use and may not be used for any purpose other than to identify prospective properties consumers may be interested in purchasing. This information, including square footage, while not guaranteed, has been acquired from sources believed to be reliable.
Last Updated: 2026-01-09 05:09:22
Boulder Condo Mania






