Connie Kraska Boulder Real Estate Agent - 720.309.2862
SOLD! MLS: 982457 $365,000
3 Bedrooms with 3 Baths2010 46TH AVE 55 GREELEY CO 80634
GREELEY CO 80634MLS: 982457
Status: SOLD
Closed On: 2023-04-21
Sold Price: $365,000
Sold Price per SqFt: $200
Square Footage: 18223 Bedrooms
3 Baths
Year Built: 1988
Zip Code: 80634
Listing Remarks
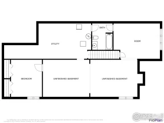
This wonderful patio home is ideally located in The Village at Foxhill. With main-level living, the first floor of this ranch home boasts two spacious bedrooms and two bathrooms. Enjoy vaulted ceilings, large windows that flood the home with natural light, a gas fireplace, main-level laundry, and two private outdoor spaces. One outdoor space is a covered deck off the living room, and the other is a large deck with a small private and fenced yard. Enjoy preparing dinner in the well-appointed kitchen with ample storage, a great deal of countertop space, and a center island. The kitchen opens to a casual but large eat-in kitchen and a formal dining space. Downstairs, you'll find a partially finished basement with a full bathroom and a third bedroom with double closets and an egress window. The remaining unfinished space gives ample storage space, including some built-in shelving. The current owner has completed many home upgrades, including a new electrical panel, remodeled primary bathroom shower, and much more.
Address: 2010 46TH AVE 55 GREELEY CO 80634 GREELEY CO 80634
Listing Courtesy of RTown Real Estate 970-619-8308
Condo Mania Agent
Connie Kraska
LIV Sotheby's International Realty
Broker Associate
Phone: 720.309.2862
Request More Information
Listing Details
STATUS: Closed SPECIAL LISTING CONDITIONS: Private Owner LISTING CONTRACT DATE: 2023-02-23 CLOSE DATE: 2023-04-21 BEDROOMS: 3 BATHROOMS FULL: 2 BATHROOMS THREE QUARTER: 1 BATHROOMS HALF: 0 LIVING AREA SQ FT: 1822 BUILDING AREA TOTAL: 1477 YEAR BUILT: 1988 TAXES: $1,760 HOA FEES FREQUENCY: Monthly HOA FEES: $425 HOA INCLUDES: Common Amenities, Trash, Snow Removal, Maintenance Grounds, Management, Utilities, Maintenance Structure, Cable TV, Water/Sewer, Hazard Insurance APPLIANCES INCLUDED: Electric Range/Oven, Dishwasher, Refrigerator, Washer, Dryer, Disposal ARCHITECTURAL STYLE: Patio Home, Ranch CONSTRUCTION: Wood/Frame, Brick/Brick Veneer COMMUNITY FEATURES: None EXTERIOR FEATURES: Private Yard, Lighting FIREPLACE: Gas, Living Room HEATING: Humidity Control COOLING: Central Air, Ceiling Fan(s) INTERIOR FEATURES: High Speed Internet, Eat-in Kitchen, Separate Dining Room, Cathedral/Vaulted Ceilings, Open Floorplan, Walk-In Closet(s), Kitchen Island LAUNDRY FEATURES: Washer/Dryer Hookups, Main Level LOT FEATURES: Curbs, Sidewalks, Fire Hydrant within 500 Feet, Within City Limits # GARAGE SPACES: 2 PARKING FEATURES: Garage Door Opener PROPERTY TYPE: Attached Dwelling PROPERTY SUB TYPE: Attached Dwelling ROOF: Composition DIRECTION FACES: Southwest LISTING AGENT: AMANDA HICKS LISTING OFFICE: RTOWN REAL ESTATE
Property Location: 2010 46TH AVE 55 GREELEY CO 80634 GREELEY CO 80634
This Listing
Active Listings Nearby
You Might Also Be Interested In...
The Fair Housing Act prohibits discrimination in housing based on color, race, religion, national origin, sex, familial status, or disability.
Information source: Information and Real Estate Services, LLC. Provided for limited non-commercial use only under IRES Rules. © Copyright IRES.
Information Deemed Reliable But Not Guaranteed. The information being provided is for consumer's personal, non-commercial use and may not be used for any purpose other than to identify prospective properties consumers may be interested in purchasing. This information, including square footage, while not guaranteed, has been acquired from sources believed to be reliable.
Last Updated: 2026-01-20 19:10:16
Boulder Condo Mania






